日韩不卡免费视频LOGO

全国咨询热线

400-820-0603
客户案例

热门产品:

螺杆无油空压机 水润滑无油空压机 涡旋无油空压机 中压无油空压机

干式无油螺杆空压机

干式无油螺杆空压机

功率 45~315KW 排气量 3.78~50.09mm³/min 立即咨询 >
无油涡旋空压机

无油涡旋

功率 2.2~37kw 排气量 0.22~4.0m³/min 立即咨询 >

400-820-0603

021-57366601

立即咨询 >

无油螺杆空压机进气阀的种类和结构

时间:2020-01-15 11:32

来源:日韩不卡免费视频无油空压机

作者:denair1111

点击:

现在社会人们对无油螺杆空压机的要求越来越高了其性能也随之,从部件到整机大家都想了解其用途及如何去保养,下面就介绍下关于无油螺杆空压机进气阀的一些基本常识:

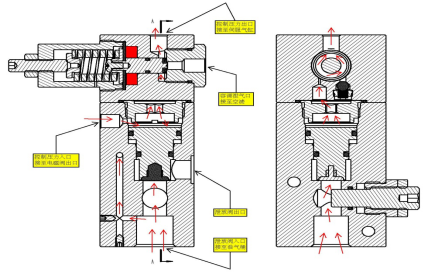
1、活塞式进气阀:利用空压机进气阀内活塞上下动作控制空压机空重车工作。

当空压机启动、停机和空载时,泄放电磁阀利用进气口向活塞供气,使活塞向上关闭;当空压机全负荷工作后,泄放电磁阀得电停止泄放,活塞室从排气口排出,进气阀活塞因进气压力差的关系下降,进气阀全开,空压机全负荷工作;当压力达到设定压力上限时,泄放电磁阀失电开始泄放,并将进气阀活塞推上,使进气阀处于关闭状态。此时空压机呈空载状态。

活塞式进气阀的结构有进气口、阀门上盖、活塞、底座、泄放电磁阀组成。

2、蝶式进气控制阀:螺杆式空压机启动时进气阀阀片处于关闭状态,确保不带负荷启动。当电动机重负荷运转时,三相电磁阀加电后被打开,由此过来的气体进气进气阀的伺服汽缸,推动伺服汽缸的阀杆,带动进气蝶阀,使之全开,开始重负荷运转。蝶式进气控制阀内部的单摆式止回阀自带配重和氟橡胶密封圈,开机时螺杆式空压机主机吸气,由于压差的原因,止回阀能及时迅速的紧密关闭,确保没有停机吐油的现象。

无油螺杆空压机进气阀

蝶阀的开启和关闭手控制气缸控制 ,根据接受压力信号配合反比例阀可控制气缸的活塞杆深处长短,蝶阀打开或者关闭,从而调节螺杆式空压机的进气量。蝶式进气控制阀的结构由阀体、单摆式止回阀、蝶形阀和伺服汽缸组成。

日韩不卡免费视频无油空气空压机,全无油空压机,螺杆空压机拥有核心主机制造技术,一流的加工检测平台,为您提供高效稳定、节能环保的无油空压机产品。厂家直销,全国联保。售后服务更加方便快捷。如果您有对无油空压机的需求或想了解更多关于无油空压机产品的信息,欢迎留言咨询或拨打日韩不卡免费视频全国客服热线:400-777-0802!


相关资讯